REQUEST A TOUR If you would like to see this home without being there in person, select the "Virtual Tour" option and your agent will contact you to discuss available opportunities.
In-PersonVirtual Tour

Listed by Arnell Corderoof Fulton Grace Realty
-
New
935 N Ashland Avenue #1 Chicago, IL 60622
UPDATED:
Key Details
Property Type Commercial
Sub Type Retail/Stores
Listing Status Active
Purchase Type For Rent
MLS Listing ID 12514931
Year Built 1894
Tax Year 2023
Lot Dimensions 150ft X 25ft
Property Sub-Type Retail/Stores
Property Description
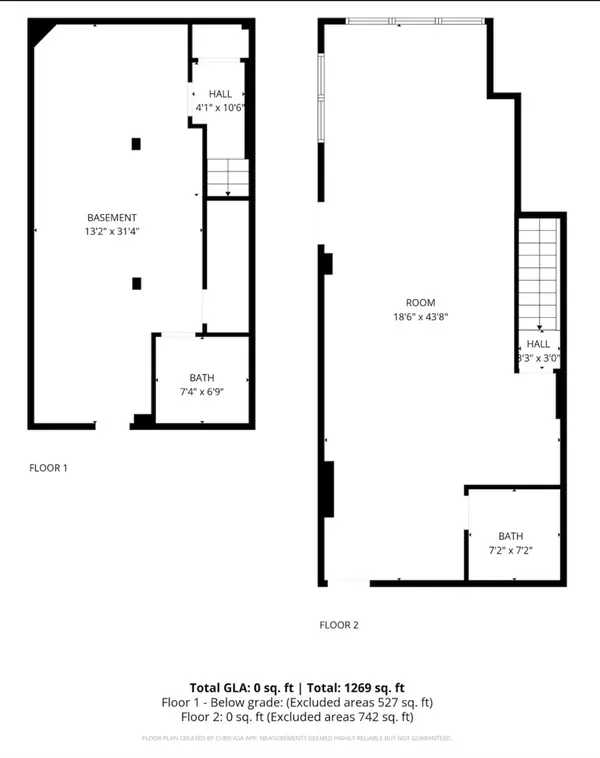
B1-3 Zoning | Easily 10's of Thousands of Traffic Daily on this stretch of North Ashland Ave | GREAT OVERFLOW POTENTIAL from the neighboring businesses like Eatery, Medical and Retail establishments to name a few! | Over 1200 sqft to have your Business Idea become a reality! | Over 10ft High Ceilings on the Main Level - 7ft on the Basement Level | Well-Maintained Mechanicals | 2 Restrooms | EXPERIENCED Commercial Management Company & Developer - Build Outs can be negotiated | Modified Lease offered (Real Estate Taxes included) | Video available upon request
Location
State IL
County Cook
Zoning OTHER
Interior
Cooling Central Air
Flooring Vinyl
Fireplace N
Exterior
Utilities Available Electric to Site, Natural Gas Available, Sewer Connected, Water Available
View Y/N true
Roof Type Rubber
Building
Foundation Concrete Perimeter
Water Municipal Water
Structure Type Brick,Concrete
Others
Virtual Tour https://youtu.be/PJw9ITcrPpg

© 2025 Listings courtesy of MRED as distributed by MLS GRID. All Rights Reserved.

GET MORE INFORMATION





